Description de l'offre
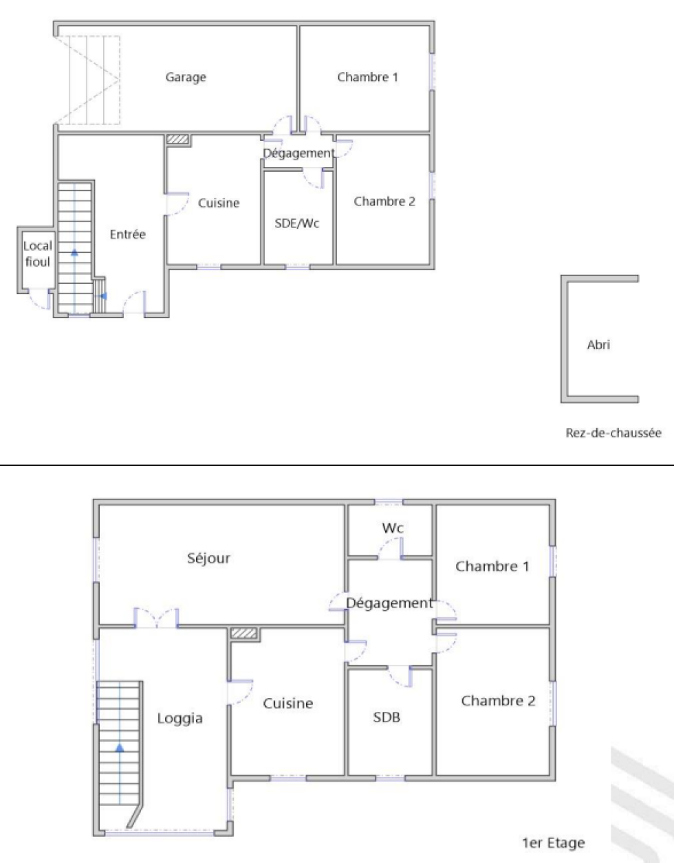
À Saint-Maurice-de-Cazevieille, charmante commune du Gard, découvrez cette maison offrant un potentiel rare grâce à ses deux appartements indépendants, situés l’un au-dessus de l’autre. Idéale pour un investissement locatif, un projet familial ou une résidence principale. Édifiée sur un terrain d’environ 800 m², la propriété dispose également d’un grand jardin privatif, parfait pour profiter du calme ou créer un espace de détente. La maison est située en plein centre du village, à proximité immédiate des commodités, tout en conservant un environnement paisible. Une opportunité à saisir pour ceux qui recherchent un bien polyvalent, bien situé et doté d’un bel extérieur dans le Gard.
